INFO@MEHPRIVOD.RU
ООО Мехтехника
Тел.: 8 (800) 505-36-88

Вариаторы цепные пластинчатые ВЦН

Вариаторы цепные пластинчатые ВЦН

Вариатор пластинчатый цепной ВЦН - устройство, предназначенное для плавного изменения частоты вращения выходного вала машин, в которых необходимо бесступенчатое регулирование. Вариаторы эксплуатируются в условиях умеренного (исп. У) при температуре от 1 до 45°С или тропического климата (исп. Т) при температурного режима от 1 до 55°С. Особенностями оборудования выступает высокое качество сборки и оперативность ввода в эксплуатацию. За счет того, что наша компания сотрудничает с мировыми производителями приводной техники, заказчики и покупатели могут рассчитывать на объективный уровень цен и сжатые сроки поставок оборудования.

Цена: от 16 100 руб.

Условия применения:

  • нагрузка постоянная или переменная по величине одного направления;
  • работа непрерывная и с остановками;
  • вращение валов в любую сторону;
  • окружающая среда — невзрывоопасная, неагрессивная.

Общее описание

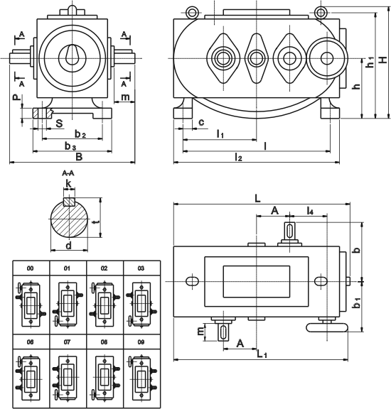
Габаритные и присоединительные размеры (вариатор без редуктора)

РИС . 1
Габаритные и присоединительные размеры
(Вариатор без редуктора)

Габаритные и присоединительные размеры (вариатор с редуктором на входе)

РИС .2
Габаритные и присоединительные размеры
(Вариатор с редуктором на входе)

Типоразмер вариатора

L

L1

l

l1

l2

l4

А

S

P

c

m

n

H

h

h1

d

ВЦ1Н

418

430

320

160

380

90

80

14

22

60

60

36

280

132

253

25

ВЦ3Н

643

645

580

290

620

147

125

18

22

50

80

80

385

170

347

32

Типоразмер вариатора

t

k

d1

t1

k1

B

B1

b

b1

b2

b3

b4

ВЦ1Н

28,3

8

20

22,5

6

365

400

182

160

240

280

205

ВЦ3Н

35

10

32

35

10

510

620

255

215

160

290

300

Типоразмер вариатора

Масса вариатора, кг

без редуктора

с редуктором

со встроенным фланцевым электродвигателем

с ручным управлением

с дистанционным

с ручным

с дистанционным

управлением

управлением

управлением

управлением

с ручным управлением

с дистанционным управлением

ВЦ1Н

36

45

42

51

51

66

ВЦ3Н

99

109

116

126

Технические характеристики

Типо-
размер

Исполнение

Обозначение

Диапазон регули-
рования

Частота вращения, об/мин

Передаваемая мощность, кВт

Крутящийся момент на выходном валу, Н*м

Допускаемая радиальная консольная нагрузка, приложенная в середине посадочной части выходного вала, Н, не более

на входе приставки

на входе вариатора

n2max/n2 min

n

n1

n2min

n2max

Nmax

Nmin

Mmax

Mmin

   

ВЦ1Н0.101-..

3,15

 

1000

565

1775

2,8

2,3

40

15,0

1300

 

Без редуктора на входе

ВЦ1Н1.101-..

4,0

 —

1000

500

2000

2,4

1,7

33

12,0

1000

   

ВЦ1Н2.101-. .

6,3

 

750

295

1880

1,25

0,6

20

6,5

560

ВЦ1Н

 

ВЦ1Н0.131-. .

3,15

 

1000

565

1775

2,8

2,3

40

15 0

1 300

 

С редуктором на входе

ВЦ1Н1.131-. .

4,0

1420

1000

500

2000

2,4

1,7

33

12,0

1000

   

ВЦ1Н2.131-. .

6,3

 

750

295

1880

1,25

0,6

20

6,5

560

 

С встроенным фланцевым

                     
 

электродвигателем

ВЦ1Н2.111-..

6,3

1420

750

295

1880

1,25

0,6

20

6,5

560

 

на входе

                     
   

ВЦ3Н0.101-..

3,15

 

1000

565

1775

7,2

4,6

78

38,5

1940

 

Без редуктора на входе

ВЦ3Н1.101-..

4,0

1000

500

2000

6,8

3,8

73

32

1810

ВЦ3Н

 

ВЦ3Н2.101-. .

6,3

 

750

295

1880

4,2

2,0

65

21,5

1610

   

ВЦ3Н0.131-. .

3,15

 

1000

565

1775

7,2

4,6

78

38,5

1940

 

С редуктором на входе

ВЦ3Н1.131-. .

4,0

1420

1000

500

2000

6,8

3,8

73

32

1810

   

ВЦ3Н2.131-. .

6,3

 

75Ñ

295

1880

4,2

2,0

65

21,5

1610

Примечания:

1. Вместо двух точек в конце обозначения исполнения вариатора проставляются две цифры - условное обозначение способа регулирования и варианта сборки;

2. На вариаторах ВЦ1Н2.111-03-1 мощность установленного электродвигателя - 0,55 кВ, на вариаторах ВЦ1Н2.111-73-1 мощность установленного электродвигателя 1,1 кВт.

Пример условного обозначения при заказе

ВЦ1Н1.131-03, что означает:

ВЦ - вариатор цепной; 1 - типоразмер (габарит); Н - модификация; 1 - диапазон регулирования; 131 - вариант комплектации с редуктором на входе; 3 - схема сборки.